DAC Marshal
Tambaram, Chennai


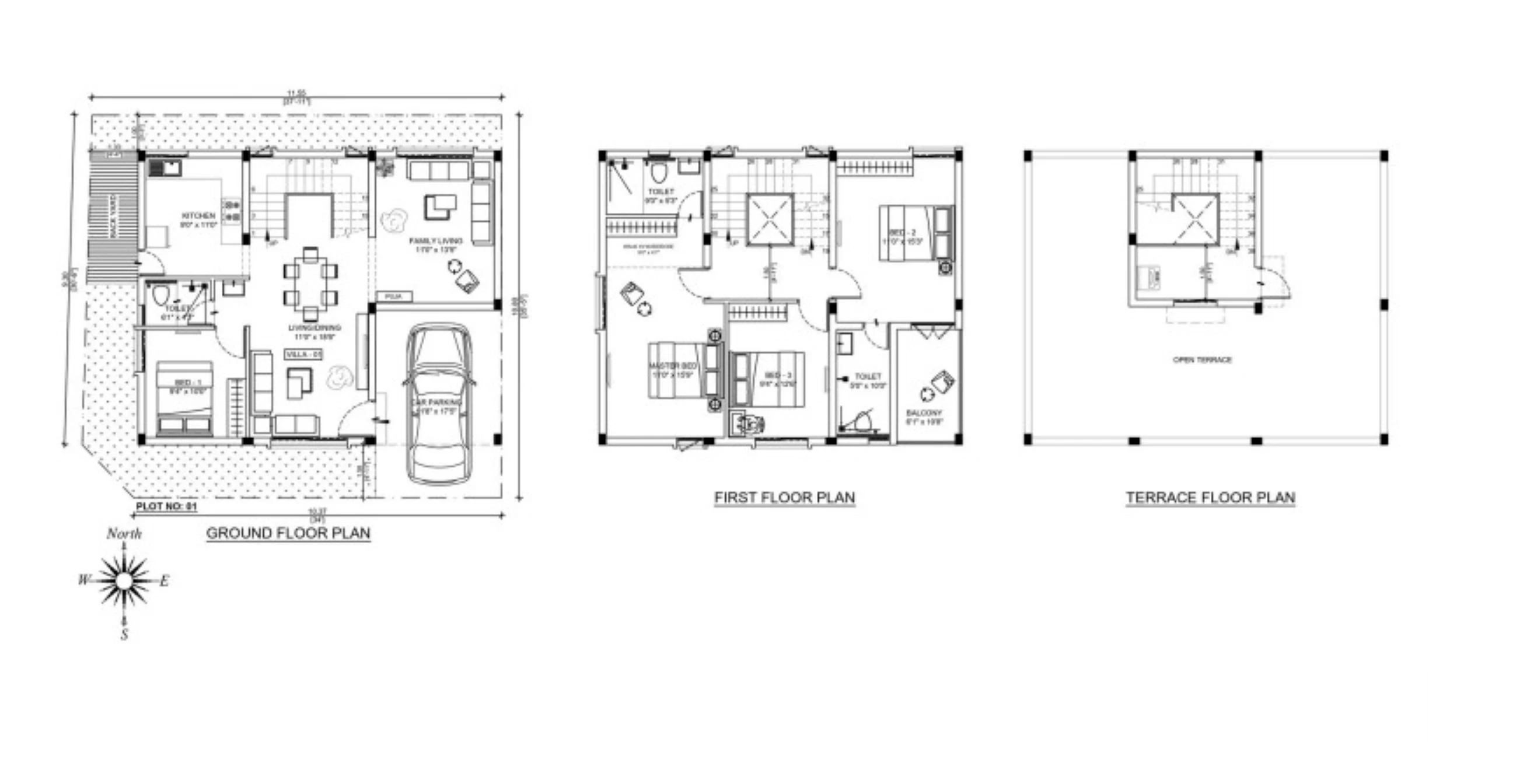
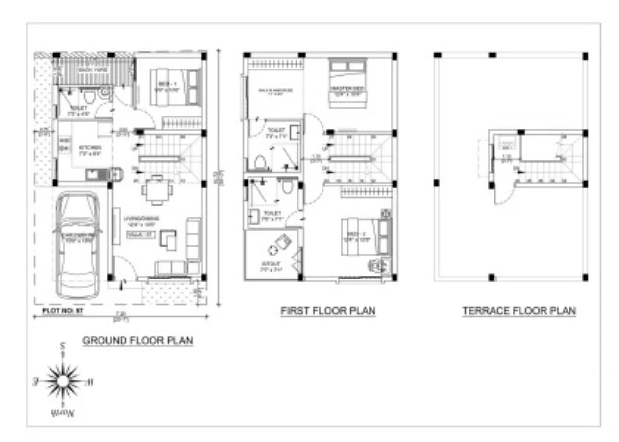
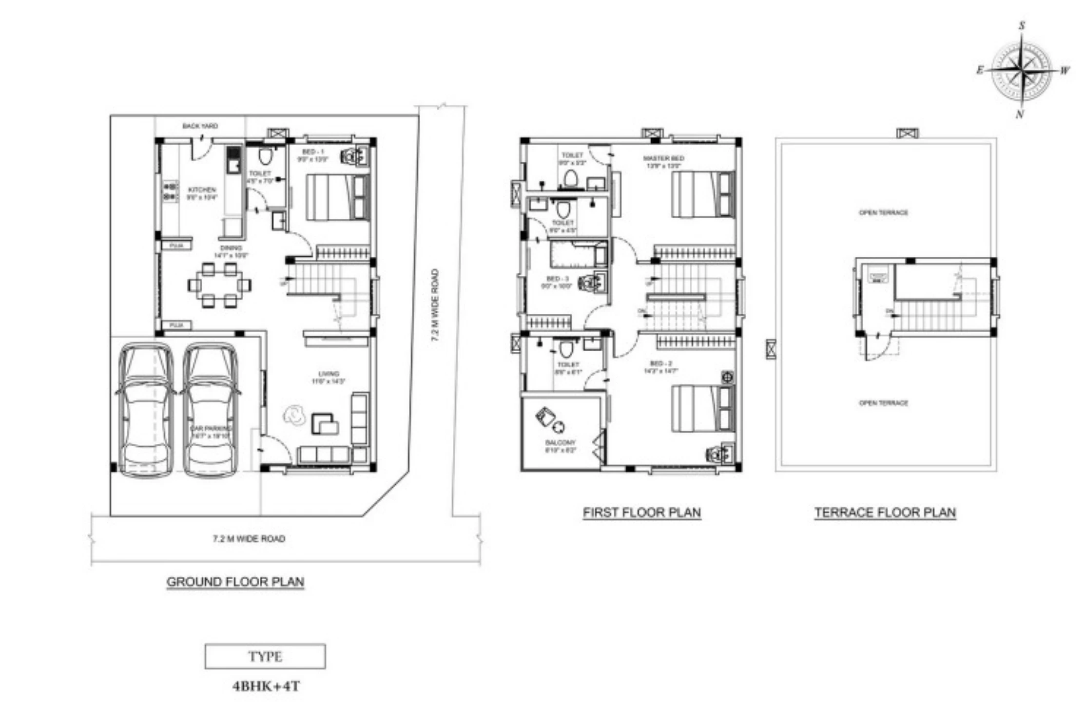
Located in the peaceful lanes of Sithalapakkam, DAC Santa Clara gives your dream home a mix of modern comfort and connectivity. With 60 villas built on a 2.22 acres, this villa community offers something soothing for a calm lifestyle. Whether it’s the rich textures underfoot or the natural light pouring into every corner, these villas speak softly but clearly about what it means to live well.
With configurations ranging from 3 to 4.5 BHK, every home at DAC Santa Clara in Sithalapakkam has been designed not just for today, but for years of cherished memories. What sets DAC Santa Clara apart is the life that blossoms beyond your front door and take you to a world of fun and joy, is their clubhouse. The clubhouse here is ideal for celebrations, bonding by catching up with neighbors, or for your self time alone, this caters to all your needs.
On counting on the location Sithalapakkam gives you the quiet of a residential suburb with the pulse of the city just a short drive away. With prominent schools, educational institutions, hospitals, entertainment, lifestyle centers etc DAC Santa clara offers the rare mix of good commute to live your calm life.
So, come live in a space that understands both your pace and your peace. With magestic villas and lifestyle-rich amenities, your next chapter begins here. Grab it before it is gone, schedule your site visit today and explore what home truly feels like.
DAC Santa Clara typically refers to a premium residential villa project developed by DAC Developers in Chennai, though it may also be associated with events held at the Santa Clara Convention Center. Residential Project Specifications (Chennai)Located in Semmancheri/Sithalapakkam, this project consists of approximately 60 independent villas spread across 2.2 to 3 acres.
Event Venue Specifications (Santa Clara, CA)The Santa Clara Convention Center frequently hosts major tech events like Design Automation Conference (DAC).
Electronic Components (DAC Products) If you are looking for technical specifications for a Digital-to-Analog Converter (DAC) device:
Explore exclusive new launch projects of DAC Developers Private Limited’s find Apartments, Villas or Plots property for sale at Chennai. Grab the Early-bird launch offers, flexible payment plan, high-end amenities at prime locations in Chennai.
Rs. 224 L
Rs. 224 L
Rs. 60,190
Rs. 9,55,989
Principal + Interest
Rs. 50,55,989