Embassy Greenshore
Devanahalli, Bangalore


Embassy East Avenue is a luxury residential project by the Embassy Group located in Whitefield, Bangalore. Situated on a 3.75-acre land parcel, the project consists of three high-rise towers (G+22 floors) and is designed to provide contemporary living with extensive green cover.
Location: Directly opposite Nexus Shantiniketan Mall on ITPL Main Road, Whitefield.
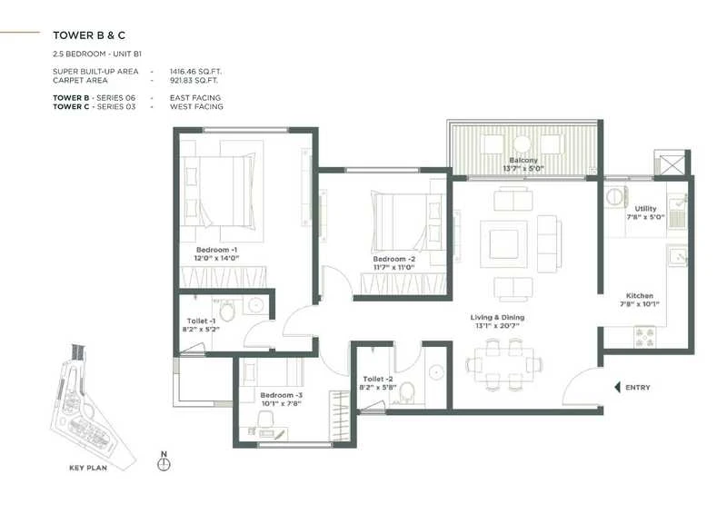
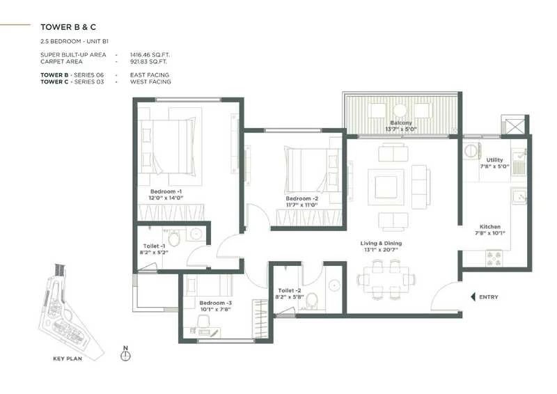
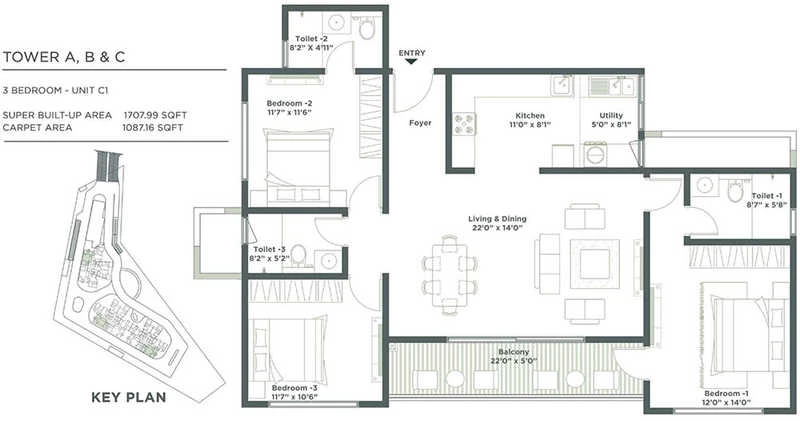
Configurations: Offers 2, 2.5, 3, and 4 BHK (Jodi) apartments.
Possession Status: Currently under construction; possession is expected around September 2028.
RERA Number: PRM/KA/RERA/1251/446/PR/200224/006649.
Pricing: Units were originally launched starting from approximately ₹1.56 Cr, with current market listings ranging up to ₹3.74 Cr for larger units.
Amenities and Lifestyle
The project features a 17,000 to 19,000 sq. ft. clubhouse and over 35 amenities:
Wellness: Smart gym, yoga deck, swimming pool (with separate kids' area), and jogging tracks.
Sports: Tennis court, putting greens, cricket arena, and skating rink.
Unique Features: A "Paw-Rawk" pet area, a walking aviary, and an outdoor jacuzzi.
Smart Living: Advanced smart home systems for app-controlled lighting and security.
Structure
RCC framed Building Structure.
Concrete Solid Block Masonry for Exterior and Interior walls (Wherever applicable).
Flooring
Vitrified tile in the Foyer, Living, Dining, and Corridors.
Laminated Wooden Flooring in Bedrooms.
External grade wooden flooring in Balconies.
Anti-skid ceramic tiles for all bathrooms, utility, and common areas.
Doors
Main Door – 8 Feet High Opening with Pre-Moulded Flush Shutter & Frame in Wood and Polish on Both Sides.
Internal Doors – 7 Feet High Opening with Wooden Frames and Flush Shutters.
External Windows – UPVC Frames and Sliding Shutters.
Plumbing and Sanitary
All Toilets will have EWCs and Chrome Plated Fittings.
Chrome Plated Tap with Shower Mixer.
Granite Counter with Ceramic Wash Basin in the Master Toilet and Pedestal Wash Basins in Other Toilets.
Rainwater Harvesting drain pipes included.
Security
Suitable Size and Capacity Passenger and Service Lifts in Every Block.
Round-the-clock security with intercom facility.
CCTV Cameras at all vantage points.
Electrical
Grid Power from BESCOM for each home.
Modular switches of reputed make.
Concealed Wiring with PVC Insulated Copper Wires and Modular Switches.
100% Power backup for Apartments, Elevators, common areas & pumps
Explore exclusive new launch projects of Embassy Group’s find Apartments, Villas or Plots property for sale at Bangalore. Grab the Early-bird launch offers, flexible payment plan, high-end amenities at prime locations in Bangalore.
Rs. 222 L
Rs. 222 L
Rs. 60,190
Rs. 9,55,989
Principal + Interest
Rs. 50,55,989